Схема сборки строительных лесов
1: Схема установки лесов ЛСПР-200, комплект 480 м2 (20х24)
1. рама 2х1м;
2. рама с лестницей 2х1м;
3. связь 3м;
4. связь диагональная 3,3м;
5. башмак;
6. пробка-анкер;
7. ограждение торцевое 1м
ПРИЛОЖЕНИЕ 2: Последовательность монтажа лесов
I Этап
На подготовленной площадке установить деревянные подкладки и башмаки, при необходимости установить винтовые опоры. Башмаки и винтовые опоры должны находится в одной горизонтальной плоскости.
II Этап
В башмаки установить две смежные рамы первого яруса, соединить их связями и диагональными стяжками. Через шаг 3 метра установить другие две смежные рамы и так же соединить их связями и диагональными стяжками и повторить эту операцию до набора необходимой длины лесов.
III Этап
Установить ригели с настилом на первом ярусе двух первых смежных секций с правой и левой стороны лесов.
IV Этап
Установить рамы второго яруса, соединить их связями и диагональными стяжками, причем диагонали расположить таким образом, чтобы они были установлены в шахматном порядке.
V Этап
Установить ригели с настилами во втором и третьем пролетах с правой и левой стороны лесов.
VI Этап
Крепление лесов к стене осуществить пробками через анкеры (закрепленные на стойках рам) через 4 м в шахматном порядке в соответствии с приложением.
VII Этап
Повторяя этапы III, IV, и V набрать необходимую высоту лесов.
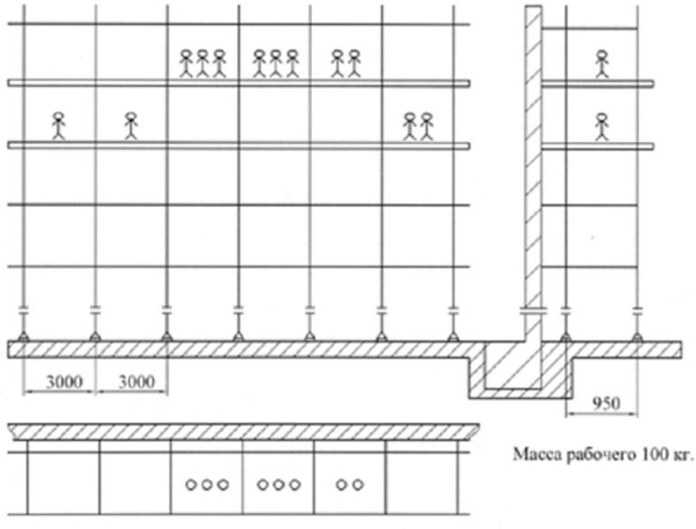
3: Схема нагрузок (для отделочных работ)
